产品中心
我们专注于为您提供解决方案

主要适用于在实验室中对不同组份干燥的粉体之间、颗粒之间或粉体和颗粒之间的混合试验。是摸索物料混合工艺参数的理想机型,是机电一体化的*的实验设备。
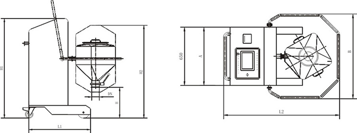
HSD实验室型混合机整机装于可移动式的底座上。主要部件包括机架、回转系统、电气控制系统、料斗等。锥形混合料斗主要由斗体、斗盖及卡箍、蝶阀等组成。
1、混合斗与主机采用快卸式联接方式,安装和拆卸方便。
2、可配置不同的混合料斗,无须频繁转料、加料等程序,满足实验测试需要。
3、PLC全自动控制,自动混合,自动定位,控制操作人性化。
4、整机无卫生死角,外露材料采用*奥氏体不锈钢材质,完全符合药品生产的GMP要求。
